Property
Beds
7
Full Baths
3
1/2 Baths
None
Year Built
None
Sq.Footage
N/A
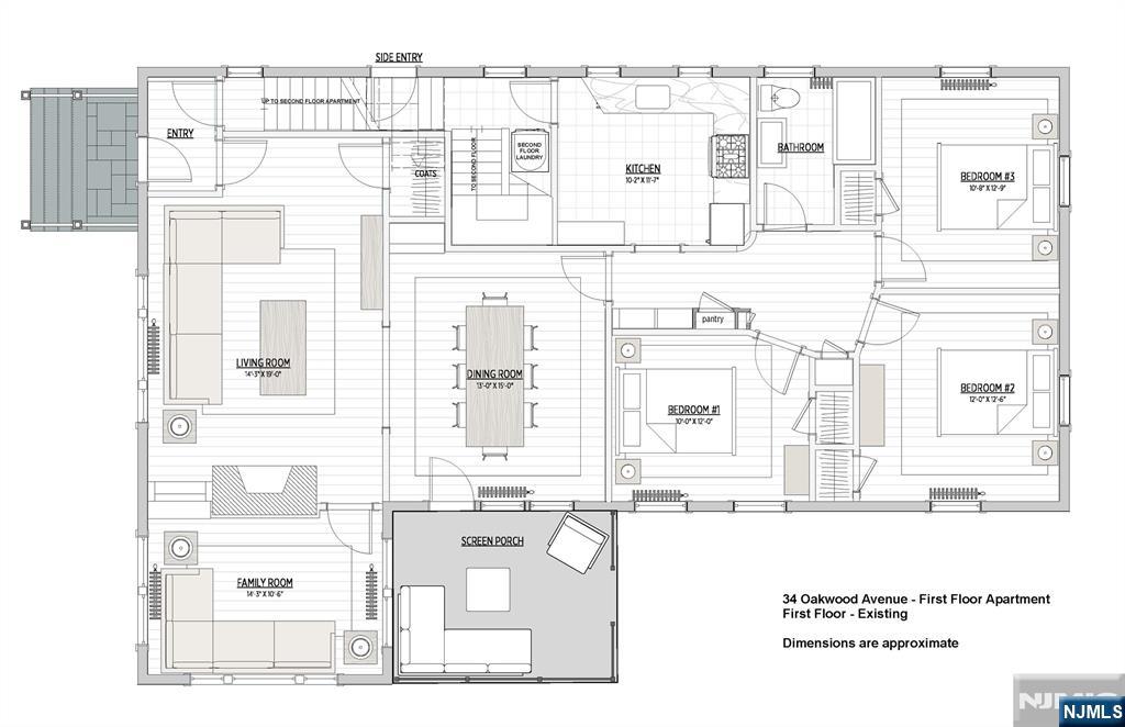
Welcome to a truly special home in the heart of Up Montclair. Set on a picturesque, tree-lined street, this well-maintained 2 family offers the space and feel of a single family, with the added benefit of rental income just 1 block to NYC train and bus. The upper residence spans the second and third floors, offering 4 beds and 2 full baths with a spacious layout ideal for everyday living and entertaining. High ceilings, hardwood floors, and abundant natural light highlight an extra-large living room with a wood-burning fireplace and beautiful built-ins, with an adjacent sunroom/office space. A spacious primary bedroom, formal dining room, and screened-in porch overlooking the yard add to the home's character. The updated kitchen features premium stainless steel appliances, while central air provides year-round comfort. The 3rd floor includes 2 bedrooms, a full bath, and an additional unfinished room ideal for an office or potential 5th bedroom. The 1st floor, 3 bed, 1 bath unit provides flexibility, with rental income of $4,056/month and the ability to occupy either unit or the whole house depending on your needs. The 1st floor space features hardwood floors, built-ins, and finishes consistent with the home's character. The property also includes a large unfinished basement, a 2-car garage, and added parking, offering enjoyment now and future potential. Close to shops, parks, and restaurants. Tenant-occupied; showings coordinated with notice. Photos reflect prior occupancy.
Features & Amenities
Interior
-
Total Bedrooms
7
-
Bathrooms
3
-
Pet friendly
N/A
Exterior
-
Garage
Yes
-
Garage spaces
2
-
Pool
No
Area & Lot
-
Property Type
Residential Income
-
Property Sub Type
Multi Family
-
Architectural Style
2 Family
Price
-
Sales Price
$1,499,000
-
Tax Amount
$28,286
-
Sq. Footage
N/A
-
Price/SqFt
N/A
HOA
-
Association
No
School District
-
Elementary School
N/A
-
Middle School
N/A
-
High School
N/A
Schedule a Showing
Showing scheduled successfully.
Mortgage calculator
Estimate your monthly mortgage payment, including the principal and interest, property taxes, and HOA. Adjust the values to generate a more accurate rate.
Your payment
Principal and Interest:
$
Property taxes:
$
HOA fees:
$
Total loan payment:
$
Total interest amount:
$
Location
County
ESSEX
Elementary School
Middle School
High School
Listing Courtesy of Heather Kandawire , Keller Williams Realty - NJ Metro Group
RealHub Information is provided exclusively for consumers' personal, non-commercial use, and it may not be used for any purpose other than to identify prospective properties consumers may be interested in purchasing. All information deemed reliable but not guaranteed and should be independently verified. All properties are subject to prior sale, change or withdrawal. RealHub website owner shall not be responsible for any typographical errors, misinformation, misprints and shall be held totally harmless.
FOUNDER
Patrick Bolger
Call Patrick today to schedule a private showing.
* Listings on this website come from the FMLS IDX Compilation and may be held by brokerage firms other than the owner of this website. The listing brokerage is identified in any listing details. Information is deemed reliable but is not guaranteed. If you believe any FMLS listing contains material that infringes your copyrighted work please click here to review our DMCA policy and learn how to submit a takedown request.© 2024 FMLS.